Image and video hosting by TinyPic

Progetti

/ Renault

Descrizione:

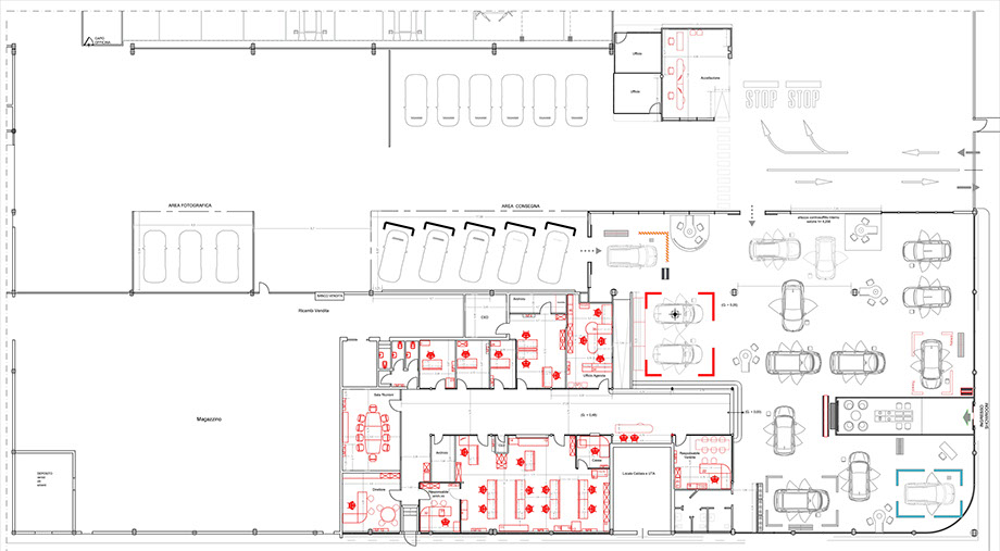
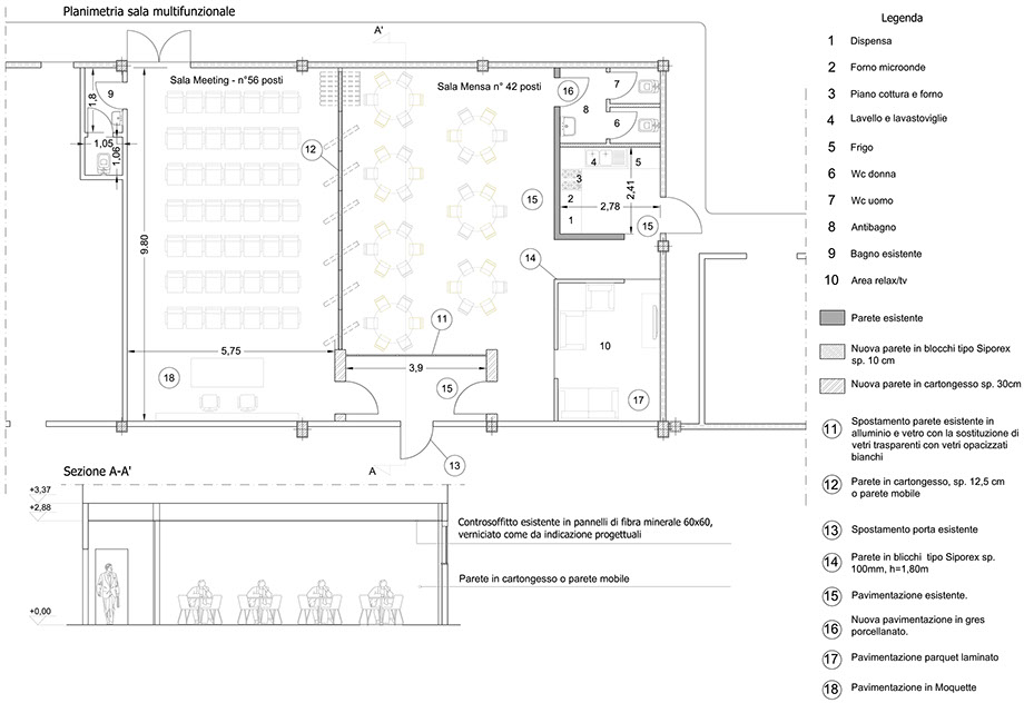
Affidamento incarico professionale relativo alla Progettazione definitiva, esecutiva e Direzione dei Lavori per la ristrutturazione della

Filiale della Renault Retail Group Italia S.p.a di Napoliin Via Antiniana n° 30 – Pozzuoli. Ristrutturazione Area Uffici, ampliamento del Salone Espositivo, nuova Area Consegne, nuova Area Fotografica, Sala meeting e Sala Mensa.

 

Anno: 2014/2015

 

Committente: Renault Retail Group Italia S.p.A

 

Mansione: Progettista e Direttore dei Lavori

 

Descrizione:

Progettazione preliminare realativa alla realizzazione della nuova scala anticendio presso la  Filiale della Renault Retail Group Italia S.p.a di Napoli, Via Antiniana n° 30 – Pozzuoli

 

Anno:2015

 

Committente: Renault Retail Group Italia S.p.A

 

Mansione: Progettista