Image and video hosting by TinyPic

Progetti

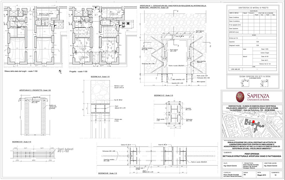
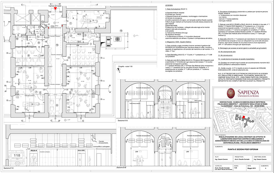
// Lavori di riqualificazione dei locali destinati ad attività di laboratorio didattico Centro di Simulazione e Addestramento Medico Policlinico Umberto I

Descrizione:

Affidamento incarico professionale relativo alla Progettazione Architettonica ed Impiantistica, Coordinamento della Sicurezza in fase di Progettazione e di Esecuzione relativamente ai lavori di riqualificazione dei locali destinati ad attività di laboratorio didattico Centro di Simulazione e Addestramento Medico siti nella clinica di ginecologia e ostetricia (PL036), Policlinico Umberto I Roma.

 

Committete: Unversità degli Studi di Roma " La Sapienza"

 

Anno:2015

 

Mansione: Progettista e Coordinatore della Sicurezza in fase di Progettazione e di Esecuzione